Volver al listado
Venta

Parcela con proyecto de vivienda unifamiliar aprobada en Cap des Moro cerca de S' Amarador

DES PINAR DES MAJORAL (M) · Santanyí

Parcela con proyecto de vivienda unifamiliar aprobada en Cap des Moro cerca de S' Amarador – foto principal
VentaTerreno
445.000 €
0Dormitorios
0Baños
0 m²Construidos
354 m²Parcela

Descripción

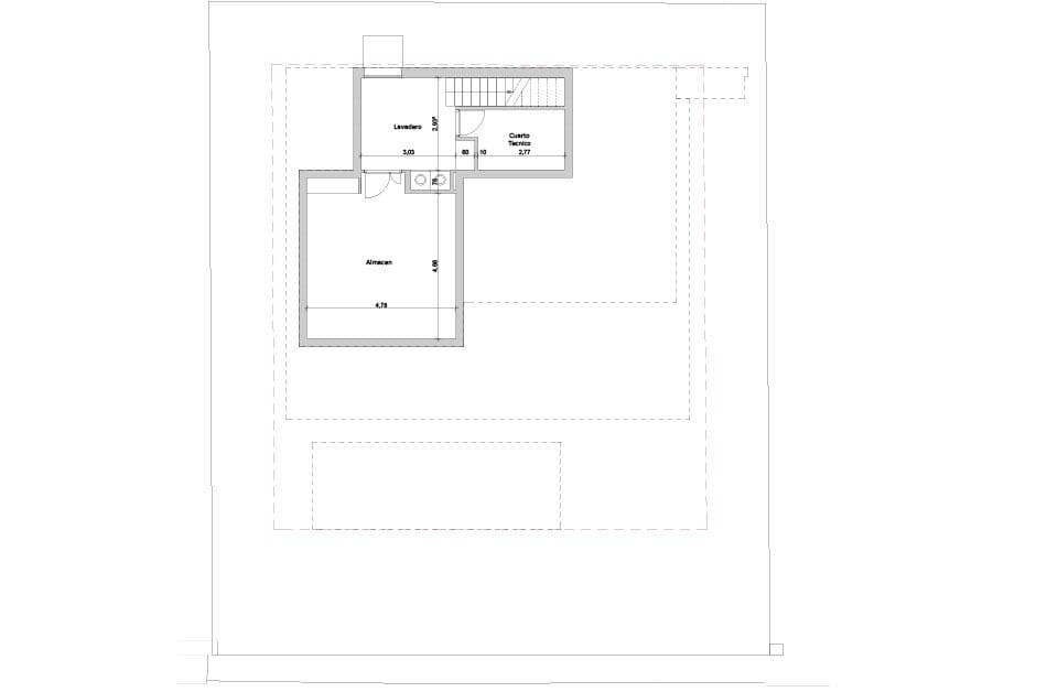
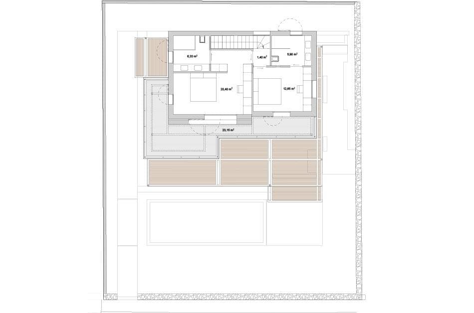
¡Gran Oportunidad ! Parcela de aprox. 350 m² en una ubicación privilegiada de Cap des Moro, con licencia de construcción en vigor y proyecto iniciado. El proyecto aprobado contempla una vivienda unifamiliar de aprox. 150 m² con 3 dormitorios y 3 baños, además de una piscina de 22 m². El sótano el suelo de losa ya están ejecutados y terminados, permitiendo un rápido avance de la obra. La parcela se sitúa en una calle tranquila, a poca distancia del mar y a menos de 10 minutos a pie de la magnífica playa S'Amarador. El acceso al pintoresco pueblo de Santanyí es rápido, a 10 minutos en coche. Cuenta con servicios de electricidad y agua de red disponibles. La base perfecta para terminar su futuro chalet a medida.

Material privado

Descarga el dossier completo de esta propiedad

Recibe una version en PDF con fotos, ficha tecnica y resumen comercial. Si formas parte del equipo, el acceso interno queda desbloqueado durante 30 dias.

Entrega segura

Ubicación

Ref.DRAC-UR2051DB
ZonaDES PINAR DES MAJORAL (M)
MunicipioSantanyí
Ubicación aproximada
OpenStreetMapVer mapa