Volver al listado
Venta

Finca Rústica en Campos con Proyecto

de Joan Alou · Campos

Finca Rústica en Campos con Proyecto – foto principal
VentaTerreno
490.000 €
0Dormitorios
0Baños
0 m²Construidos
14.400 m²Parcela

Descripción

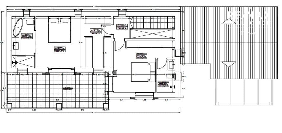
En el corazón de la Mallorca rural, esta finca de 14,400 m² ofrece la oportunidad de construir una elegante casa de 275 m² con un proyecto aprobado que combina tradición y modernidad. Diseñada para aprovechar al máximo su entorno, la casa contará con tres amplias habitaciones, cada una con su propio baño en suite, distribuidas en dos plantas. La planta baja albergará un salón-comedor luminoso, conectado a una moderna cocina abierta, todo con acceso directo a una gran terraza que rodea una piscina de 35 m². Este espacio exterior, con una acogedora pérgola, es perfecto para disfrutar del clima mediterráneo y las vistas despejadas.La distribución está pensada para ofrecer comodidad y funcionalidad, con una habitación en la planta baja ideal para invitados, y las otras dos en el primer piso, donde la habitación principal cuenta con un balcón privado con vistas panorámicas.Conexión con Campos y sus ServiciosLa ubicación de la finca permite disfrutar de la tranquilidad del campo sin renunciar a la proximidad a servicios esenciales. A pocos minutos en bicicleta o a pie, el núcleo de Campos ofrece todo lo necesario para el día a día: supermercados, farmacias, tiendas, y una variedad de restaurantes y cafeterías donde se puede degustar la cocina local. Además, Campos dispone de modernas instalaciones deportivas y de ocio, incluyendo canchas de tenis, pistas de pádel y un gimnasio municipal, lo que lo convierte en un lugar ideal para quienes buscan mantener un estilo de vida activo.Entorno Natural y ProximidadesMás allá de los servicios urbanos, la finca está ubicada en un entorno natural de gran belleza. Uno de los mayores atractivos de esta propiedad es su cercanía a la famosa playa de Es Trenc, un verdadero paraíso natural con aguas turquesas y arenas blancas, ideal para quienes disfrutan de la playa y la naturaleza en su estado más puro. Además, la finca se encuentra a solo 30 minutos en coche de Palma, la capital de la isla, lo que facilita el acceso al aeropuerto y a todo lo que la vibrante ciudad tiene para ofrecer, desde cultura y gastronomía hasta compras y entretenimiento.Esta finca rústica representa una oportunidad única de vivir en un entorno privilegiado, donde la modernidad y el estilo de vida mediterráneo se unen para ofrecer un hogar excepcional en Mallorca.

Material privado

Descarga el dossier completo de esta propiedad

Recibe una version en PDF con fotos, ficha tecnica y resumen comercial. Si formas parte del equipo, el acceso interno queda desbloqueado durante 30 dias.

Entrega segura

Ubicación

Ref.DRAC-RU1196GE
Zonade Joan Alou
MunicipioCampos
OpenStreetMapVer mapa